Wer eine Neubau-Immobilie kauft und vermietet, kann Steuern sparen

24 Juni '24

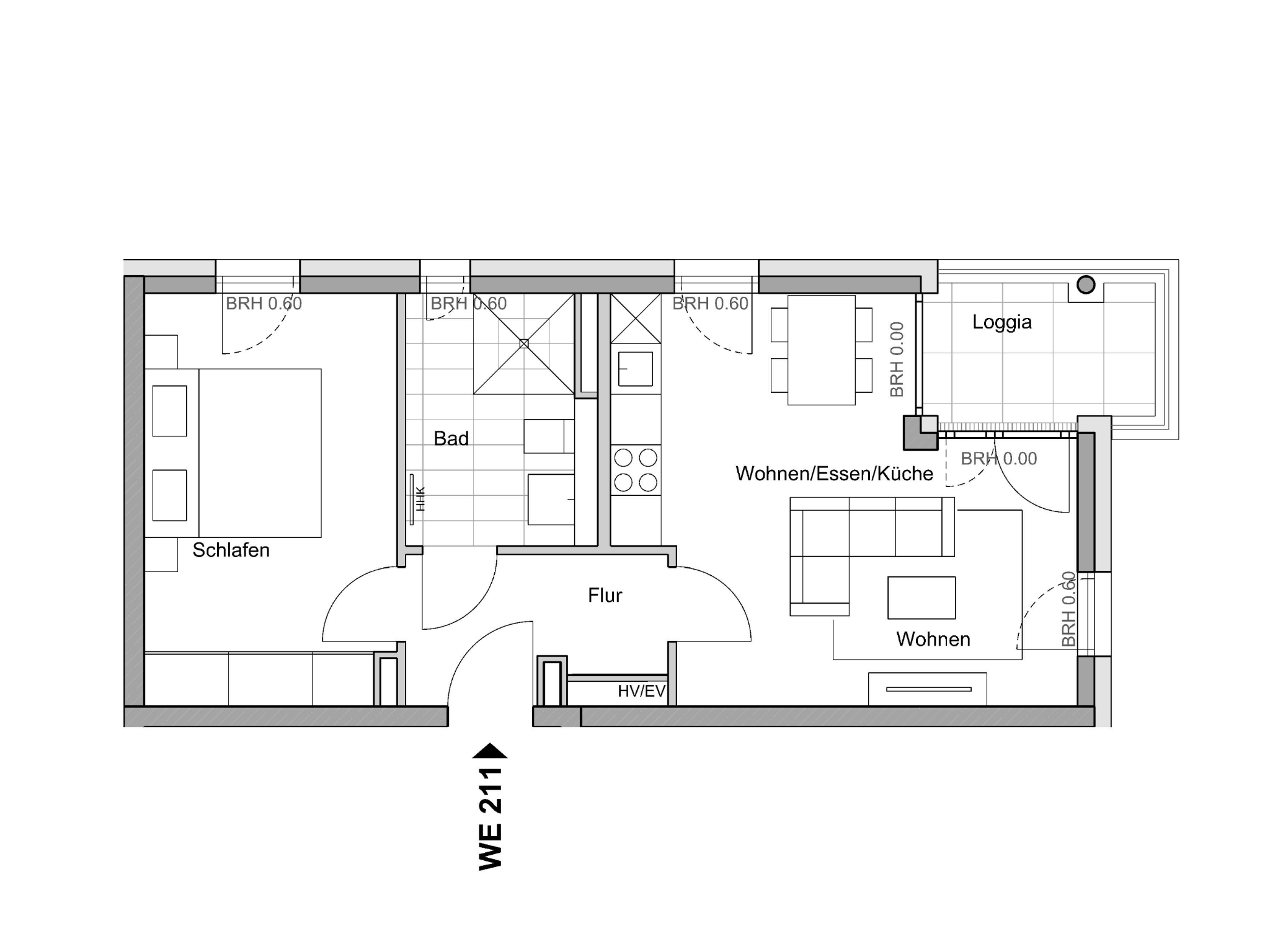
Heute stellen wir Ihnen den Lieblingswohnungstyp von Kapitalanlegern in 4 Logen an der Feldmark am Beispiel von Wohnung Nr. 211 vor. Was macht diese Wohnung besonders? Sie bringt mit ihrem Standort im Bochumer Ostpark die Lagequalität mit, die Kapitalanleger suchen. Zur Universität und dem Bochumer Zentrum ist es zudem nicht weit. Das macht sie gleichermaßen bei Kapitalanlegern und späteren Mietern beliebt. Es wurde an alles gedacht. 

image alt

2-Zimmer-Wohung (211)

  • ca. 51 m²

  • Loggia

  • 1. Obergeschoss

  • Fußbodenheizung und wertige Sanitärausstattung

  • privater Kellerraum

  • Tiefgaragenstellplatz möglich

Wohnung anschauen
2 - 4 Zimmer Wohnungsübersicht
Jetzt Wohnung ausstatten mit Parkett, Fliesen und Armaturen! Konfigurator